APPARTAMENTO IN VENDITA VICINANZE VIALE TIMAVO 23

In vendita
Reggio nell'Emilia - VIALE TIMAVO 23
221.000 €
Appartamento
Categoria
138
m2
6
Locali
1
Bagni
1
Box
2
Posti auto
Descrizione
Proponiamo in vendita un interessante appartamento situato in posizione centrale, al primo piano servito da ascensore di un edificio con ingresso da Viale Timavo.
L’immobile gode di un affaccio laterale ed uno sul grande cortile-giardino interno, che garantisce un contesto particolarmente tranquillo e riservato, al riparo dai rumori e dal traffico della via principale. Si precisa infatti che l'appartamento non affaccia su viale Timavo.
Una soluzione ideale per chi desidera vivere nel cuore della città senza rinunciare alla quiete e alla privacy.
L’appartamento ha una superficie commerciale di circa 138 mq, oltre a mq. 20 di terrazzi, ed è caratterizzato da ambienti ampi e ben distribuiti:
Attualmente è suddiviso in due unità immobiliari:
APPARTAMENTO ingresso, cucina abitabile, camera matrimoniale, bagno, seconda stanza.
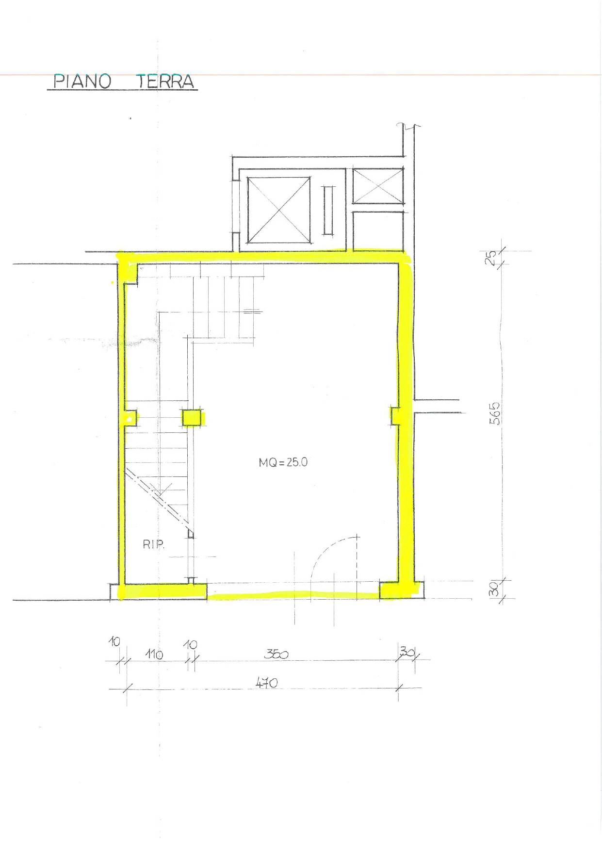
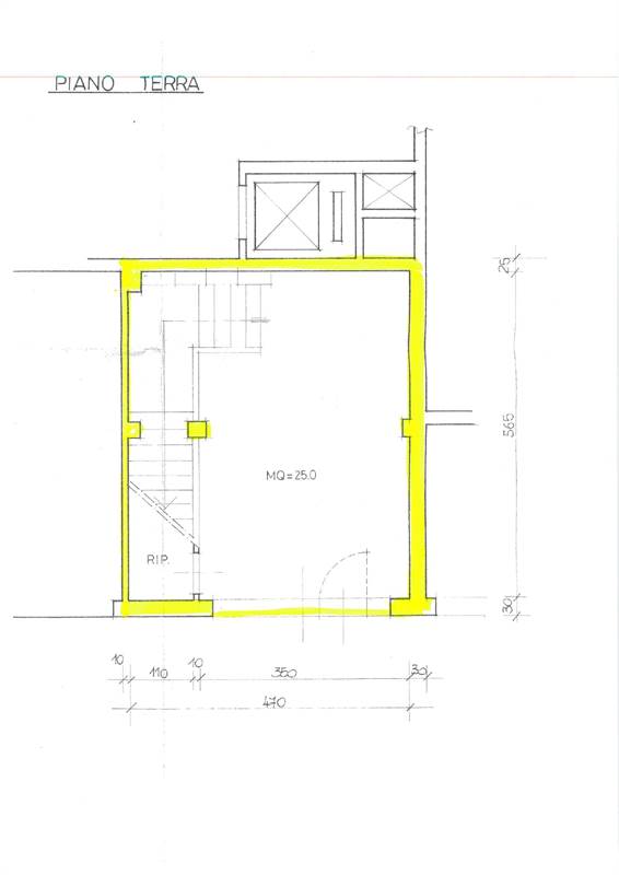
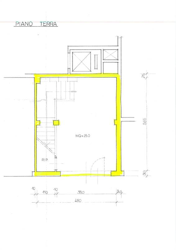
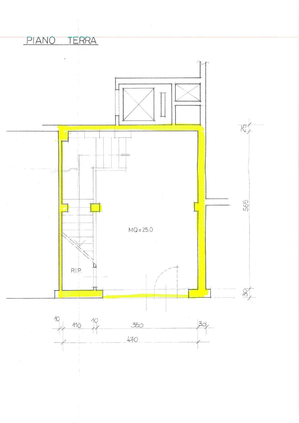
SECONDA UNITA'. attualmente censita ad ambulatorio, (attività medica del proprietario, composta da due ampi locali al piano primo con piccolo servizio, scala di collegamento interna per accedere ad un ulteriore ampio locale a piano terreno, dotato di un ingresso indipendente dall'esterno, già utilizzato come sala di attesa.
Le due unità possono logicamente essere riunite in un unico grande appartamento, con varie soluzioni di distribuzione interna.
La proprietà include inoltre un garage, una cantina e il diritto d’uso di un ampio locale sottotetto comune.
Una soluzione completa e funzionale, adatta a famiglie o a chi desidera spazi accessori ben sfruttabili in pieno centro città.
Per ulteriori informazioni o per fissare un sopralluogo, non esitate a contattarci.
Caratteristiche principali
Codice:
V000587
Città:
Reggio nell'Emilia
Categoria:
Appartamento
Locali:
6
Bagni:
1
Mq:
138
Box:
1
Mq Box:
21
Posti auto:
2
Terrazzi:
2
mq Terrazzo:
21
Piano:
1
Classe energetica:
G
Stato Immobile:
Abitabile
Grado:
Medio
Posizione:
Centro
Panorama:
Vista Aperta
Orientamento:
Nord Est
Lati Liberi:
2
Arredi:
Non Arredato
Tipo Soggiorno:
Soggiorno
Tipo Cucina:
Abitabile
Infissi:
Legno
Serramenti:
Mediocre
Pavim. Giorno:
Ceramica
Pavim. Cucina:
Ceramica
Accesso Disabili:
Nessuna Barriera
Accesso interno disabili:
Pieno accesso
Accessori
Ascensore
Cancello Elettrico
Ripostiglio
Veranda
Mappa
Planimetrie
Cookie preference