Ufficio in affitto in zona Tribunale

In affitto
Reggio nell'Emilia (Tondo/Tribunale/S. Prospero) - VIA GIOVANNI FALCONE, 12
1.500 €
Ufficio
Categoria
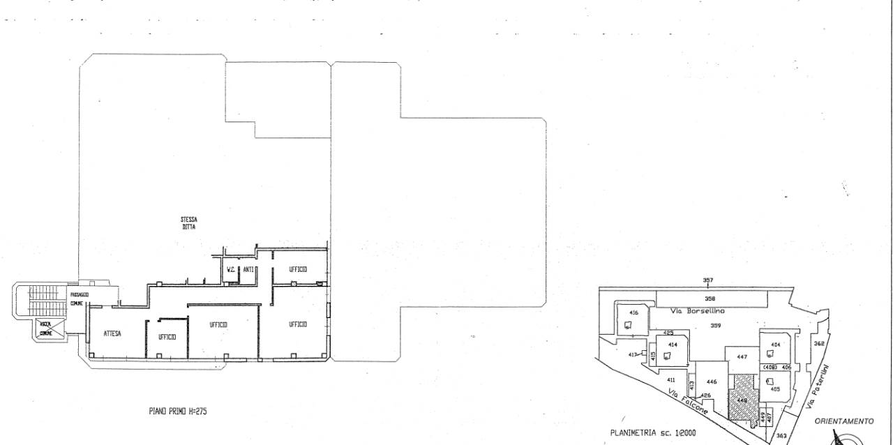
170
m2
4
Locali
Descrizione
TRIBUNALE :Si propone in locazione ufficio di prestigio, ubicato in zona centrale e servita, a breve distanza dal Tribunale di Reggio Emilia. L'immobile, posto al primo piano e servito da ascensore, si sviluppa su una superficie di 170 mq ed è composto da: ampio ingresso, quattro uffici di cui una sala riunioni, servizi e predisposizione per cablaggio. Completa la proprietà la possibilità di posti auto in garage. Se interessati ad organizzare una visita ,siete pregati di lasciare i vostri recapiti per poter essere contattati .Grazie.
Caratteristiche principali
Codice:
A000132
Città:
Reggio nell'Emilia (Tondo/Tribunale/S. Prospero)
Categoria:
Ufficio
Spese condominiali:
3.300 € / anno
Locali:
4
Mq:
170
Classe energetica:
G
Mappa
Planimetrie
Cookie preference