NEGOZIO IN AFFITTO

In affitto
Reggio nell'Emilia - via Hiroshima 1
2.500 € / mese
Negozio
Categoria
210
m2
4
Locali
Descrizione
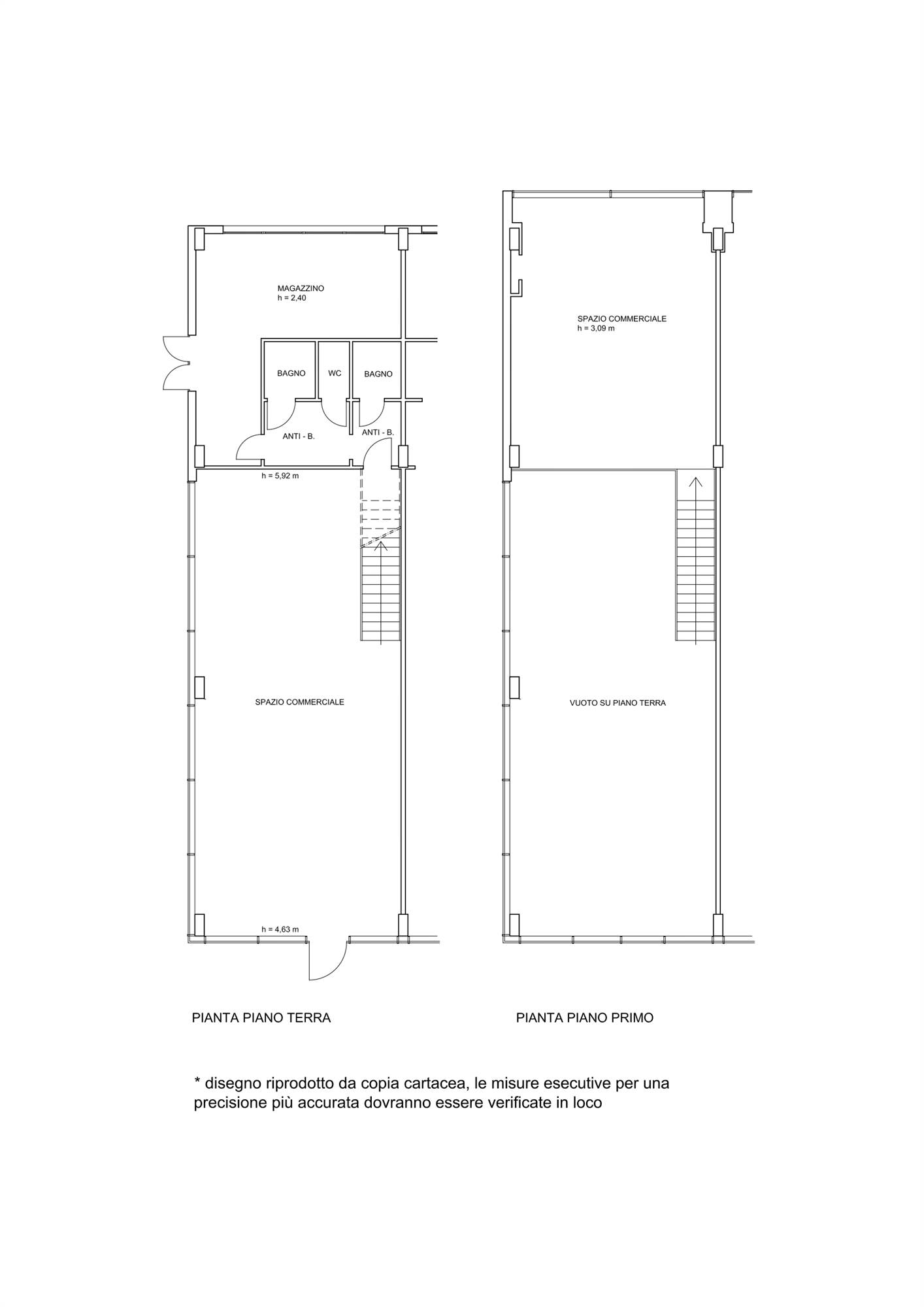
Proponiamo in affitto un ampio negozio di 210 m² situato in una zona commerciale di grande visibilità, direttamente su una delle principali arterie stradali della città. La posizione strategica garantisce un eccellente passaggio veicolare, rendendolo ideale per attività al dettaglio o showroom o servizi alla persona.. L'immobile, situato al piano terra, è facilmente accessibile sia per i clienti che per il carico/scarico merci, e dispone di ampie vetrine che si affacciano sia sulla strada, che sul grande parcheggi.
La zona è ben servita da un ampio parcheggio gratuito, che offre comodo accesso per il pubblico e per il personale, facilitando la visita e la sosta. Grazie alla sua alta visibilità e alla facilità di accesso, il negozio rappresenta una soluzione ideale per chi cerca una location con una grande affluenza e un'ottima esposizione commerciale.

L'immobile è dotato di impianto di riscaldamento e aria condizionata autonomo, e gli spazi interni sono open space, offrendo la massima flessibilità per l'organizzazione degli ambienti in base alle specifiche esigenze dell'attività. L'accesso alla proprietà è senza barriere architettoniche, assicurando una fruizione comoda e inclusiva.
Questa è un'opportunità unica per chi desidera avviare o trasferire la propria attività in una zona strategica e ben visibile, con tutte le comodità di un'area commerciale vivace e ben collegata. Per maggiori informazioni o per fissare una visita, non esitate a contattarci.
Caratteristiche principali
Codice:
A000156
Città:
Reggio nell'Emilia
Categoria:
Negozio
Locali:
4
Mq:
210
Classe energetica:
In fase di valutazione
Stato Immobile:
Buono
Grado:
Medio
Posizione:
Periferia
Riscaldamento:
Tele Riscaldamento
Tipo Riscaldam.:
Tele Riscaldamento
Tipo Impianto:
Radiatori
Acqua Calda:
Autonoma
Raffrescamento:
Fan Coil
Infissi:
Alluminio
Serramenti:
Buono
Pavimento:
Gres Porcellanato
Accessori
Aria Condizionata
Bagno Handicap
Mappa
Planimetrie
Cookie preference