AFFITTASI UFFICI PIEVE

In affitto
Reggio nell'Emilia - Via F.lli Bandiera, 1
2.600 € / mese
Ufficio
Categoria
280
m2
11
Locali
2
Box
Descrizione
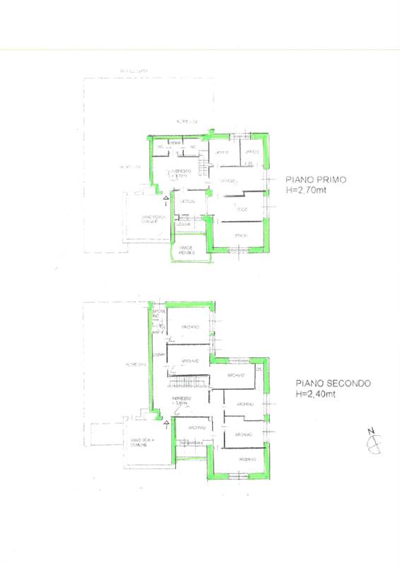
PIEVE: Proponiamo in LOCAZIONE un interessante ufficio distribuito tra il 1° ed il 2° piano di un edificio di recente costruzione, con scala interna di collegamento diretto. La superficie complessiva commerciale è di mq 280, oltre a mq.5 circa di terrazzi e un garage doppio di proprietà al piano interrato.
L’ufficio è composto da: al Piano 1° - Ingresso, sei grandi locali, un servizio, loggia e scala di collegamento al piano 2°, ove sono ubicati, oltre ad un ambiente ingresso ulteriori sei ampi locali adibiti ad archivio, un bagno. secondo ingresso dal vano scale. E’ inoltre compresa nella proprietà una autorimessa doppia in lunghezza
Chiediamo cortesemente, qualora interessati all'immobile in oggetto, di lasciare il recapito telefonico oltre che quello della mail, per poter essere ricontattati, grazie.
Caratteristiche principali
Codice:
A000168
Città:
Reggio nell'Emilia
Categoria:
Ufficio
Locali:
11
Mq:
280
Box:
2
Classe energetica:
F
Stato Immobile:
Buono
Grado:
Medio
Posizione:
Periferia
Lati Liberi:
3
Arredi:
Non Arredato
Pavimento:
Gres Porcellanato
Accesso Disabili:
Nessuna Barriera
Mappa
Planimetrie
Cookie preference