Locazione di Prestigio nel Cuore del Centro Storico

In affitto
Reggio nell'Emilia (Centro storico) - Via Emilia San Pietro
1.600 €
Appartamento
Categoria
170
m2
3
Camere
2
Bagni
Descrizione
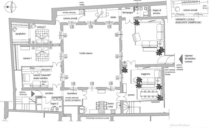
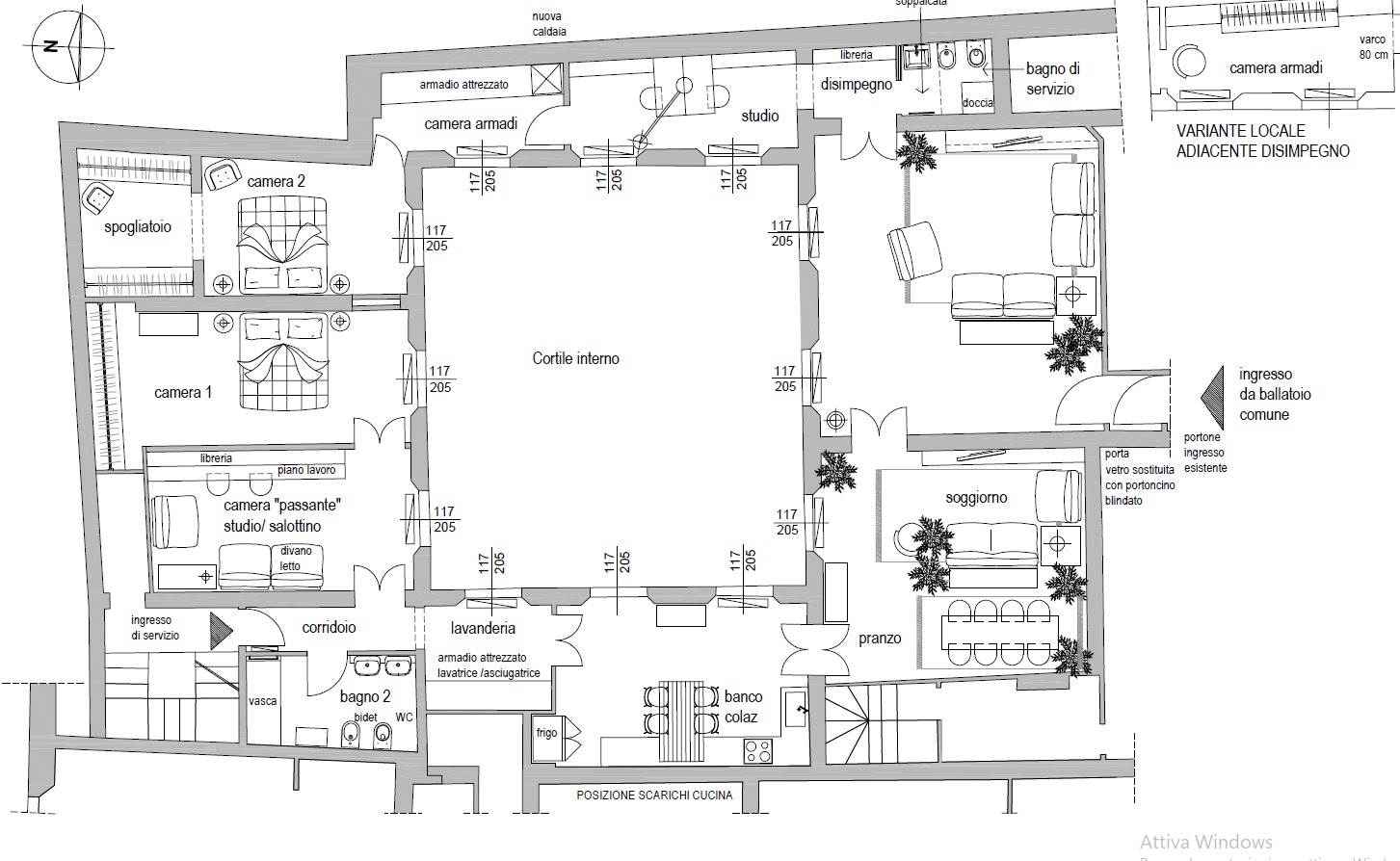
Proponiamo in locazione un prestigioso e ampio appartamento di 170 mq situato in un palazzo storico nel cuore del centro città.
L'immobile, completamente e finemente ristrutturato, rappresenta la soluzione ideale per chi cerca un ambiente elegante, confortevole e strategicamente posizionato. Posto al secondo piano e comodamente accessibile tramite ascensore, vanta una composizione di sette vani che offre grande flessibilità d'uso.
Grazie al doppio ingresso e all'ampia metratura, l'appartamento è perfetto non solo come residenza , ma anche per ospitare un'area studio professionale o un ufficio di rappresentanza, rivelandosi l'opzione ideale per medici, avvocati e professionisti che desiderano unire comodità abitativa e prestigio lavorativo.
Gli ambienti interni sono così distribuiti: Zona Giorno, Cucina abitabile, Soggiorno/Pranzo e Salotto.
Zona Notte/Studio: Due camere matrimoniali, una camera armadi e ulteriori due ambienti versatili (Studio/Camera/Salottino).
Servizi: Due bagni, di cui uno dotato di doccia.
La posizione è strategica e garantisce un facile accesso a tutti i servizi, negozi e mezzi pubblici, con la comodità aggiuntiva della vicinanza a parcheggi esterni.
Un'opportunità immobiliare ottima per coloro che desiderano uno spazio esclusivo, ben curato ed elegante nel contesto storico della città.
Siete pregati di lasciare i vostri recapiti per poter essere contattati e organizzare una visita. Grazie.

Caratteristiche principali
Codice:
A000172
Città:
Reggio nell'Emilia (Centro storico)
Categoria:
Appartamento
Spese condominiali:
1.200 € / anno
Locali:
7
Camere:
3
Bagni:
2
Mq:
170
Classe energetica:
In fase di valutazione
Stato Immobile:
Ristrutturato
Grado:
Signorile
Posizione:
Centro
Panorama:
Vista Monumento
Lati Liberi:
2
Arredi:
Non Arredato
Tipo Soggiorno:
Sala da Pranzo
Tipo Cucina:
Abitabile
Riscaldamento:
Autonomo
Tipo Riscaldam.:
Caldaia
Tipo Impianto:
Altro
Fonte Energetica:
Gas
Acqua Calda:
Autonoma
Raffrescamento:
Split
Infissi:
Legno Triplo Vetro
Serramenti:
Nuovo
Pavim. Giorno:
Parquet
Cauzione:
Tre Mesi
Tipo Contratto:
4+4 Anni
Accesso Disabili:
Nessuna Barriera
Accesso interno disabili:
Pieno accesso
Tipo Registr.:
Tradizionale
Accessori
Aria Condizionata
Ascensore
Fibra Ottica
Porta Blindata
Rete Dati
Mappa
Planimetrie
Cookie preference