LOCAZIONE COMMERCIALE CON CANNA FUMARIA – VIA MAMELI (RE)

In affitto
Reggio nell'Emilia - Via Mameli
600 €
Photo 1
Negozio
Categoria
74
m2
2
Locali
Descrizione
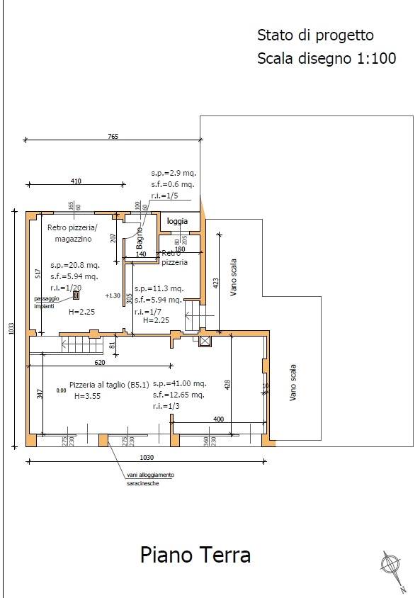
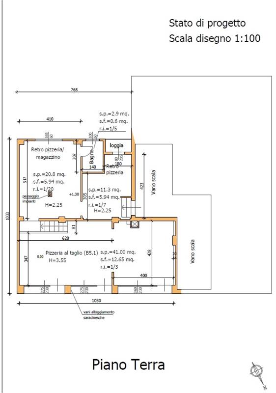
Si propone in locazione un locale di 74 mq posto al piano terra vicino al centro di Reggio Emilia. L’immobile gode di visibilità grazie a 3 ampie vetrine fronte strada e alla luminosità naturale. Accatastato come C/3 (Laboratorio) con destinazione d’uso D5.1, lo spazio è ideale per attività di artigianato di servizio (cura della persona e della casa) o per il settore alimentare. La presenza della canna fumaria a norma lo rende infatti già predisposto per panificazione, pasticceria, gelateria e produzione di prodotti tipici locali. Le spese condominiali ammontano a circa € 1.200,00 annui, comprensivi di riscaldamento e acqua. La proprietà valuta eventuali cambi di destinazione d'uso ed il locale sarà libero da fine aprile. Per informazioni e visite, siete pregati di lasciare i vostri recapiti per essere contattati. Grazie
Caratteristiche principali
Codice:
A000212
Città:
Reggio nell'Emilia
Categoria:
Negozio
Spese condominiali:
1.200 € / anno
Locali:
2
Mq:
74
Piano:
Terra
Classe energetica:
In fase di valutazione
Stato Immobile:
Buono
Grado:
Medio
Posizione:
Centro
Panorama:
Vista Monumento
Orientamento:
Nord Est
Lati Liberi:
1
Arredi:
Non Arredato
Riscaldamento:
Centralizzato
Tipo Riscaldam.:
Tele Riscaldamento
Tipo Impianto:
Termosifoni
Fonte Energetica:
Gas
Acqua Calda:
Autonoma
Serramenti:
Buono
Pavim. Cucina:
Ceramica
Pavim. Bagno:
Ceramica
Cauzione:
Tre Mesi
Tipo Contratto:
6+6 Anni
Numero Vetrine:
Tre
Destinazione:
Commerciale
Accesso Disabili:
Nessuna Barriera
Accesso interno disabili:
Pieno accesso
Tipo Registr.:
Tradizionale
Accessori
Aria Condizionata
Rete Dati
Tavolini Esterni
Mappa
Planimetrie
Cookie preference