Villa abbinata in vendita zona Acque Chiare

In vendita
Reggio nell'Emilia - Via Antonio Cugini
680.000 €
Villetta schiera
Categoria
210
m2
5
Locali
5
Camere
2
Bagni
2
Box
2
Posti auto
Descrizione
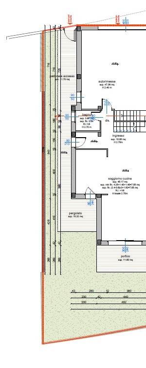
Villetta Abbinata di prossima realizzazione, superficie di circa 200 mq, ubicata in contesto residenziale riservato, a breve distanza dal centro cittadino. Si propone in vendita esclusiva una villetta abbinata caratterizzata da un elevato standard costruttivo e massime prestazioni energetiche. L'immobile, in corso di costruzione, sarà certificato in Classe Energetica A4 e sarà dotato di pannelli solari fotovoltaici. È prevista la facoltà di personalizzazione degli ambienti interni in base alle specifiche esigenze dell'acquirente . La proprietà è disposta su due livelli, ottimizzando la separazione tra zona giorno e zona notte. Piano Terra , Ingresso che accede direttamente all'ampia zona living, per garantire luminosità e funzionalità. Un bagno di servizio e un accesso diretto al garage doppio (con disposizione affiancata). La zona giorno si connette a un portico e al giardino privato di circa 98 mq, che offre la possibilità di installare una piscina (opzionale).Piano Primo, zona Notte: composta da due camere da letto matrimoniali ,un bagno padronale, un locale adibito a lavanderia e uno spazio flessibile da destinare a guardaroba o terza camera/studio. La costruzione verrà eseguita con le più recenti tecnologie edilizie, garantendo comfort abitativo e sostenibilità. Si invitano gli interessati a voler cortesemente fornire, oltre al recapito di posta elettronica, un contatto telefonico per poter essere contattati. Grazie.


Caratteristiche principali
Codice:
V000155
Città:
Reggio nell'Emilia
Categoria:
Villetta schiera
Locali:
5
Camere:
5
Bagni:
2
Mq:
210
Box:
2
Mq Box:
40
Posti auto:
2
Mq Giardino:
98
Terrazzi:
1
Piano:
Terra
Anno:
2025
Classe energetica:
A4
3,51 kWh/m²a
Stato Immobile:
Nuovo
Grado:
Signorile
Posizione:
Centro
Panorama:
Vista Giardino
Orientamento:
Ovest
Lati Liberi:
3
Giardino:
Privato
Arredi:
Non Arredato
Tipo Soggiorno:
Salone
Tipo Cucina:
Semi Abitabile
Riscaldamento:
Autonomo
Tipo Riscaldam.:
Pompa di Calore
Tipo Impianto:
Pavimento
Fonte Energetica:
Fotovoltaico
Acqua Calda:
Autonoma
Raffrescamento:
Split
Infissi:
Legno Triplo Vetro
Serramenti:
Nuovo
Accessori
Antifurto
Cancello Elettrico
Fibra Ottica
Lavanderia
Porta Blindata
Video Citofono
Mappa
Cookie preference