Capannone con Terreno in Vendita a Cella

In vendita
Reggio nell'Emilia
1.000.000 €
Capannone
Categoria
1400
m2
9
Locali
Descrizione
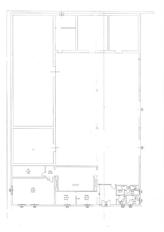
CELLA: Vendesi CAPANNONE DI CIRCA MQ. 1400 SU UNA IMPORTANTE AREA COMPLETAMENTE AUTONOMA, INDIPENDENTE E COMPLETAMENTE RECINTATA DELLA SPERFICIE COMPLESSIVA DI MQ. 7500 CIRCA. in zona Via Emilia Ovest - OTTIMA POSIZIONE - OTTIMA VIABILITA' ALTA VISIBILITA' - Il capannone sarà parzialmente ristrutturato con il cambio del manto di copertura e bonifica eternit. INTERESSANTI POTENZIALITA' EDIFICATORIE FUTURE PER ULTERIORI MQ 1500 CIRCA - Chiediamo cortesemente, qualora interessati all'immobile in oggetto, di lasciare il recapito telefonico oltre che quello della mail, per poter essere ricontattati, graz
Caratteristiche principali
Codice:
V000304
Città:
Reggio nell'Emilia
Categoria:
Capannone
Locali:
9
Mq:
1400
Piano:
Terra
Classe energetica:
E
Stato Immobile:
Da Ristrutturare
Planimetrie
Cookie preference