Vendita Soluzione Indipendente da Ristrutturare

In vendita
Reggio nell'Emilia - Via Magnanini
369.000 €
Villa Bifamiliare
Categoria
277
m2
11
Locali
2
Bagni
Descrizione
Soluzione Indipendente da Ristrutturare in Reggio Emilia
Si propone in vendita una soluzione indipendente da ristrutturare, situata in un contesto residenziale di pregio .L'immobile gode di una posizione privilegiata in strada chiusa, garantendo privacy e tranquillità, pur mantenendo una prossimità strategica al centro città e ai principali servizi.
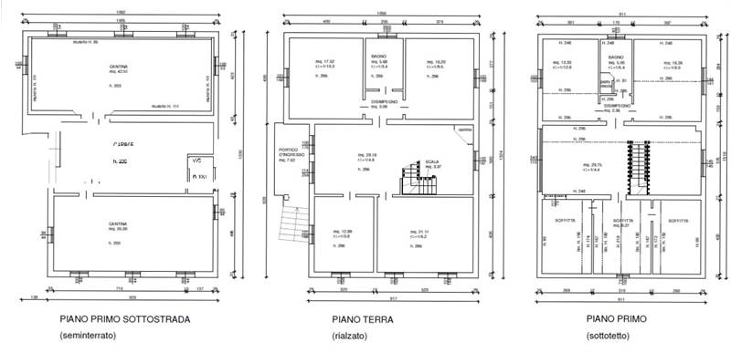
La proprietà si estende su una superficie complessiva di 277 mq, esclusi il garage e l'area verde di pertinenza. La struttura si sviluppa su due livelli, presentando superfici equivalenti al piano terra e al primo piano. L'immobile è composto da 11 vani, offrendo un'ampia flessibilità nella ridistribuzione interna degli spazi al fine di soddisfare diverse esigenze abitative o professionali.
Completano la proprietà un cortile privato e un seminterrato, quest'ultimo ideale per essere adibito a garage o magazzino, in base alle necessità dell'acquirente.
Nota Importante: Le immagini accluse al presente annuncio sono rendering illustrativi, realizzati con l'intento di tutelare la riservatezza della proprietà e fornire un'idea del potenziale di valorizzazione dell'immobile. Per maggiori informazioni siete pregati di lasciare i vostri recapiti per essere contattati. Grazie
Caratteristiche principali
Codice:
V000477
Città:
Reggio nell'Emilia
Categoria:
Villa Bifamiliare
Locali:
11
Bagni:
2
Mq:
277
Piano:
Rialzato
Classe energetica:
G
Stato Immobile:
Da Ristrutturare
Grado:
Signorile
Posizione:
Centro
Panorama:
Vista Giardino
Orientamento:
Nord Ovest Sud Est
Lati Liberi:
4
Giardino:
Privato
Arredi:
Non Arredato
Tipo Soggiorno:
Salone
Tipo Cucina:
Abitabile
Riscaldamento:
No
Tipo Impianto:
No
Acqua Calda:
Assente
Raffrescamento:
No
Infissi:
Legno Doppio Vetro
Serramenti:
Da Sostituire
Persiana:
Personalizzato
Accessori
Mappa
Planimetrie
Cookie preference