ESCLUSIVA Villa Plurifamiliare in Via Col di Lana 3 Unità Indipendenti

In vendita
Reggio nell'Emilia (Centro storico) - Via col di lana, 36
640.000 €
Villa
Categoria
375
m2
19
Locali
15
Camere
5
Bagni
1
Box
6
Posti auto
Descrizione
Proponiamo in vendita in esclusiva una signorile villa indipendente con tre unità abitative situata in Via Col di Lana, in un contesto residenziale a pochi passi dal centro storico e comodo a tutti i servizi.
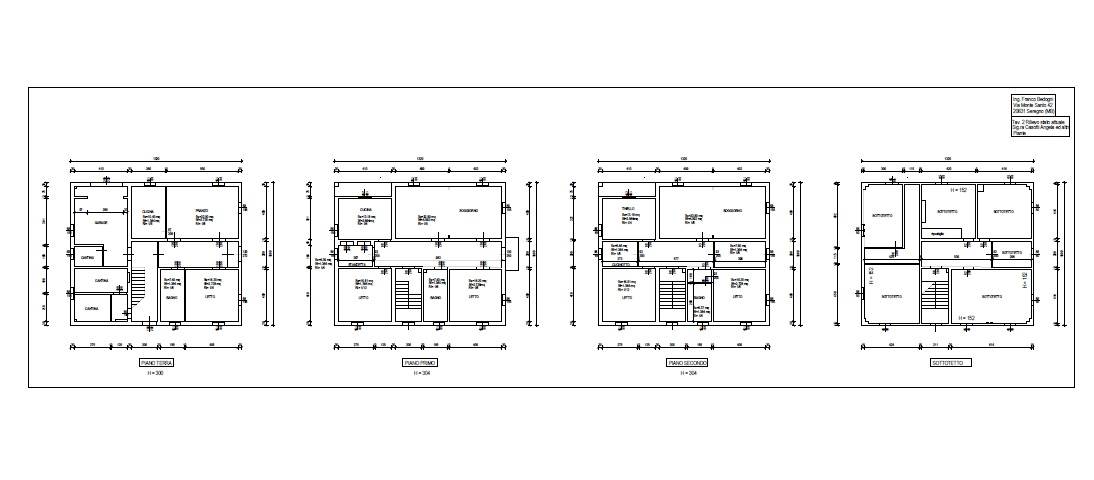
L'immobile, una solida costruzione signorile dei primi anni '60, si distingue per il fascino architettonico dell'epoca e per gli ampi volumi interni, caratterizzati da soffitti molto alti che donano grande respiro e luminosità a tutti i vani. La proprietà è già suddivisa in tre unità abitative con accatastamento distinto, garantendo massima indipendenza:
Piano Terra: Appartamento di circa 85 mq.
Piano Primo: Appartamento di circa 140 mq.
Piano Secondo: Appartamento di circa 150 mq.
La villa dispone di un’area cortiliva esclusiva di circa 180 mq, utilizzabile come giardino privato o parcheggio interno, oltre a un garage. Di grande valore aggiunto è la mansarda di circa 80 mq allo stato grezzo, che offre un potenziale significativo per realizzare un ulteriore mini-appartamento o uno studio professionale.
L'immobile si presenta in buono stato di manutenzione generale. Rappresenta la scelta ideale per chi cerca ampi spazi, indipendenza e una posizione di prestigio.
Si invitano gli interessati a lasciare i propri recapiti per essere ricontattati e organizzare un sopralluogo. Grazie.


Caratteristiche principali
Codice:
V000551
Città:
Reggio nell'Emilia (Centro storico)
Categoria:
Villa
Locali:
19
Camere:
15
Bagni:
5
Mq:
375
Box:
1
Mq Box:
16
Posti auto:
6
Mq Giardino:
180
Balconi:
2
Piano:
Terra
Classe energetica:
In fase di valutazione
Stato Immobile:
Buono
Grado:
Signorile
Posizione:
Centro
Panorama:
Vista Giardino
Orientamento:
Nord Ovest Sud Est
Lati Liberi:
4
Giardino:
Privato
Arredi:
Non Arredato
Tipo Soggiorno:
Salone
Tipo Cucina:
Abitabile
Riscaldamento:
Autonomo
Tipo Riscaldam.:
Caldaia
Tipo Impianto:
Radiatori
Fonte Energetica:
Gas
Acqua Calda:
Autonoma
Raffrescamento:
Split
Infissi:
Legno Doppio Vetro
Serramenti:
Buono
Persiana:
Tapparella Metallo
Pavim. Giorno:
Parquet
Pavim. Notte:
Parquet
Pavim. Cucina:
Ceramica
Pavim. Bagno:
Ceramica
Accesso Disabili:
No
Accesso interno disabili:
Parziale
Appartamenti:
Tre
Accessori
Aria Condizionata
Doppi Vetri
Lavanderia
Parco Condominiale
Porta Blindata
Ripostiglio
Video Citofono
Zanzariere
Mappa
Planimetrie
Cookie preference