Vendita Villa ad angolo con giardino a Rubiera

In vendita
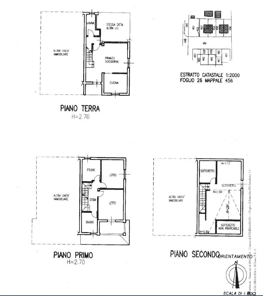
Rubiera - PEDAGGIO PEDAGNA, 42
430.000 €
Villetta schiera
Categoria
155
m2
8
Locali
3
Camere
2
Bagni
1
Box
3
Posti auto
Descrizione
In un contesto residenziale e tranquillo, a pochi minuti dal centro e adiacente alle aree verdi, proponiamo in vendita in esclusiva una prestigiosa villa a schiera d'angolo edificata a fine anni '90. L'immobile, caratterizzato da materiali di alta qualità e da un perfetto stato di manutenzione, si sviluppa su tre livelli ed è libero su tre lati.
Composizione interna:
Piano Terra: Ingresso indipendente su un luminoso salotto con accesso diretto all'area esterna, cucina abitabile, bagno finestrato con doccia e pratico ripostiglio nel sottoscala. Completa il piano un ampio garage di 22 mq collegato internamente all'abitazione.
Piano Primo: La zona notte ospita tre camere da letto: una matrimoniale con balcone privato, una seconda matrimoniale e una camera 3/4 (ideale come singola comoda o studio). A servizio del piano, un secondo bagno luminoso con vasca.
Piano Mansardato: Ampio ambiente open-space, vivibile e luminoso, ideale come quarta camera, area relax o studio professionale, dotato di doppio ripostiglio/vano tecnico.
Esterni e Accessori: La proprietà è impreziosita da un ampio giardino privato, curato e accessibile dalla zona giorno. La soluzione è dotata di ogni comfort: utenze autonome, infissi con doppi vetri, zanzariere, inferriate di sicurezza, impianto di allarme perimetrale .
Ideale per famiglie che cercano indipendenza, spazi generosi e la comodità ai servizi.
Siete pregati di lasciare i vostri recapiti per essere ricontattati. Grazie
Caratteristiche principali
Codice:
V000558
Città:
Rubiera
Categoria:
Villetta schiera
Locali:
8
Camere:
3
Bagni:
2
Mq:
155
Box:
1
Mq Box:
22
Posti auto:
3
Mq Giardino:
150
Balconi:
1
Mq Balcone:
6
Piano:
Terra
Anno:
1999
Classe energetica:
In fase di valutazione
Stato Immobile:
Buono
Grado:
Signorile
Posizione:
Centro
Panorama:
Vista Aperta
Orientamento:
Nord Ovest Sud Est
Lati Liberi:
3
Giardino:
Privato
Arredi:
Possibilità
Tipo Soggiorno:
Salone
Tipo Cucina:
Abitabile
Riscaldamento:
Autonomo
Tipo Riscaldam.:
Caldaia
Tipo Impianto:
Termosifoni
Fonte Energetica:
Gas
Acqua Calda:
Autonoma
Raffrescamento:
Non Necessario
Infissi:
Legno Doppio Vetro
Serramenti:
Ottimo
Persiana:
Oscurante Legno
Pavim. Bagno:
Ceramica
Accesso Disabili:
Nessuna Barriera
Accesso interno disabili:
Parziale
Impianto d’irrigazione:
Si
Accessori
Antifurto
Camino
Cancello Elettrico
Lavanderia
Porta Blindata
Ripostiglio
Tavolini Esterni
Zanzariere
Mappa
Planimetrie
Cookie preference