VENDESI NEGOZIO ZONA MERIDIANA

In vendita
Reggio nell'Emilia - VIA KENNEDY
149.000 €
Negozio
Categoria
200
m2
4
Locali
Descrizione
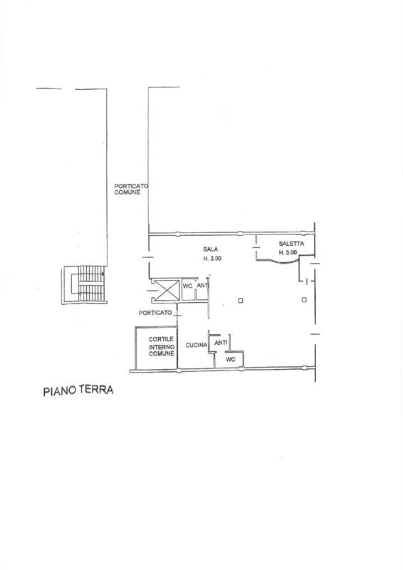
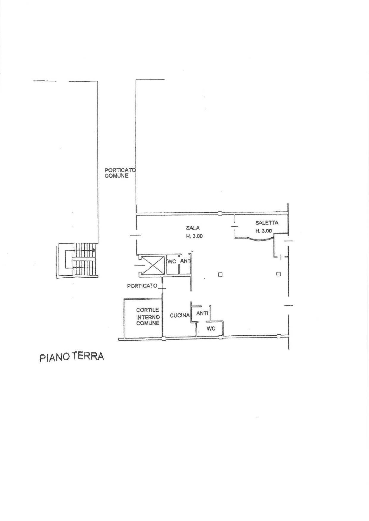
Proponiamo in vendita interessante locale commerciale ad uso negozio, situato al piano terra di un ampio edificio a destinazione mista, con presenza di negozi, uffici e abitazioni.
L’immobile si trova in prima periferia, in una zona comoda e ben servita, con ampia disponibilità di parcheggi.

Il locale viene venduto a reddito, essendo attualmente locato a un circolo ricreativo. Si presenta in ottime condizioni manutentive, con impianti perfettamente funzionanti.
Le spese condominiali sono contenute.

Soluzione ideale come investimento.

Non esitate a contattarci per ulteriori informazioni o per fissare una visita.
Caratteristiche principali
Codice:
V000568
Città:
Reggio nell'Emilia
Categoria:
Negozio
Locali:
4
Mq:
200
Piano:
Terra
Classe energetica:
E
Riscaldamento:
Tele Riscaldamento
Tipo Riscaldam.:
Tele Riscaldamento
Tipo Impianto:
Aria
Raffrescamento:
Split
Mappa
Planimetrie
Cookie preference