UFFICI IN VENDITA AL CARROZZONE

In vendita
Reggio nell'Emilia
Prezzo riservato
Ufficio
Categoria
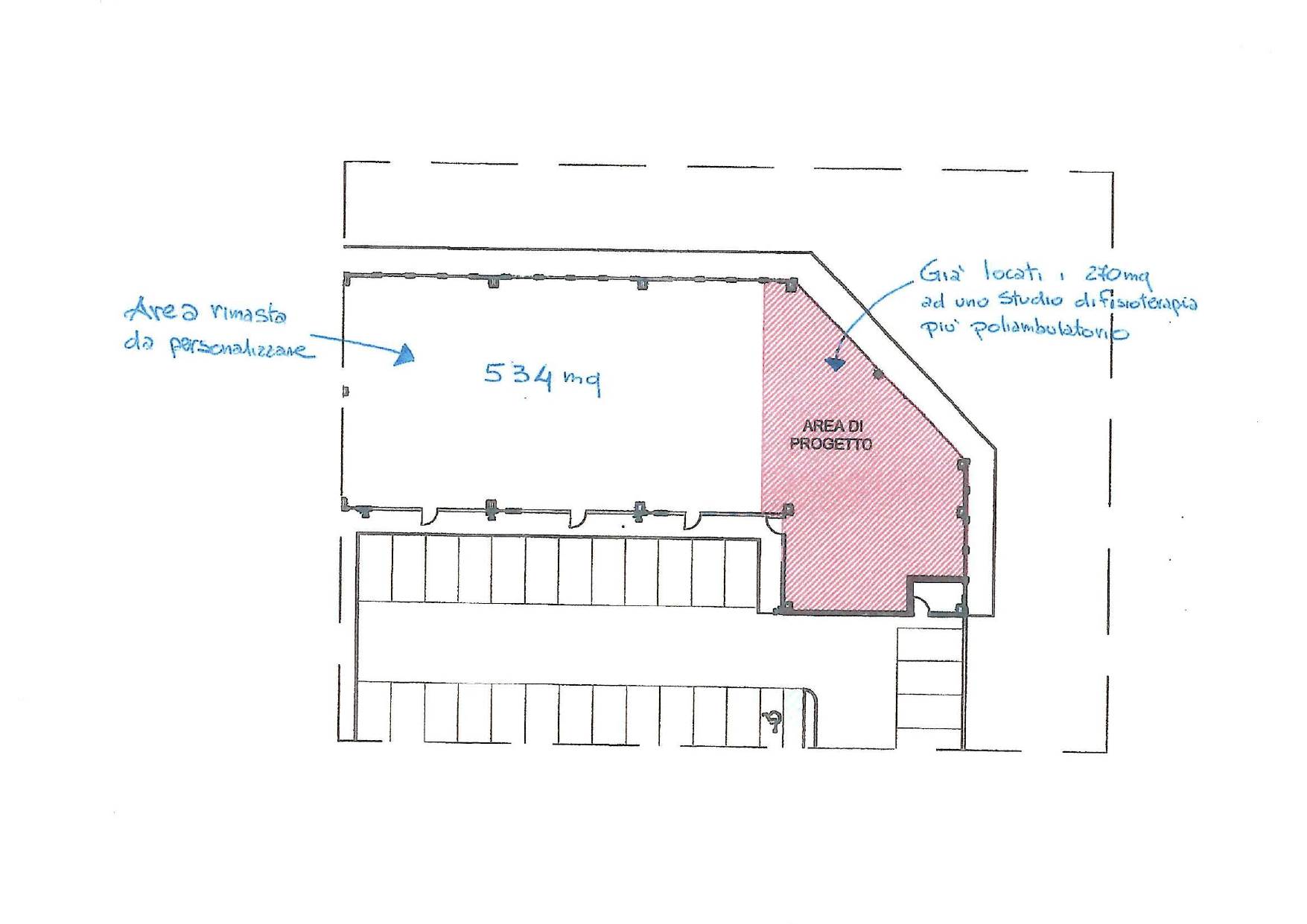
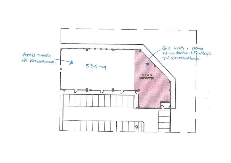
534
m2
2
Locali
Descrizione
CARROZZONE: Proponiamo in VENDITA IMPORTANTE BLOCCO UFFICI IDONEO PER MOLTEPLICI ATTIVITA' - PROFESSIONISTI STUDI MEDICI FISIOTERAPICI ECC in un bel edificio con negozi ed uffici. La superficie è di mq. 534 - I locali sono attualmente al grezzo con possibilità di personalizzazione. Il blocco uffici in vendita è posto al piano primo, ma raggiungibile in auto al piano, servito al piano con grande rampa di accesso, ove trovano posto 19 posti auto privati ad uso esclusivo, oltre ad ulteriori parcheggi nelle adiacenze. - OTTIMA ACCESSIBILITA' - OTTIMA VIABILITA' - posizionato su strade di alto traffico. Chiediamo cortesemente, qualora interessati all'immobile in oggetto, di lasciare il recapito telefonico oltre che quello della mail, per poter essere ricontattati, grazie.
Caratteristiche principali
Codice:
V000573
Città:
Reggio nell'Emilia
Categoria:
Ufficio
Locali:
2
Mq:
534
Classe energetica:
F
Stato Immobile:
Buono
Posizione:
Periferia
Lati Liberi:
2
Planimetrie
Cookie preference